Главная Проекты домов Проект бани с жилой мансардой, террасой и барбекю.

D120 Проект бани с жилой мансардой, террасой и барбекю.

Сравнить проект В избранное
Проект бани с жилой мансардой, террасой и барбекю. / 1
Проект бани с жилой мансардой, террасой и барбекю. / 2
Проект бани с жилой мансардой, террасой и барбекю. / 3
Проект бани с жилой мансардой, террасой и барбекю. / 1
Проект бани с жилой мансардой, террасой и барбекю. / 2
Проект бани с жилой мансардой, террасой и барбекю. / 3
d120
120 м²
Подготовка проекта:
Готов к отправке
Стоимость проекта
Купить проект
Задайте вопросы по проекту нашему архитектору
8 (800) 200-28-83
Время работы: пн-вс: с 9:00 до 20:00
Задать вопрос по проекту

Технические характеристики
Общие
Материал стен
Каркас
Общая площадь
120 м²
Жилая площадь
61.0 м²
Площадь застройки
93.6 м²
Приведенная площадь
103.85 м²
Количество жилых комнат/спален
2
Этажи
1 этаж + мансарда
Гараж
Нет гаража
Подвал / цокольный этаж
Без подвала
Длина дома
11.64 м
Ширина дома
6.14 м
Высота в коньке
7.6 м
Кровля
Металлочерепица
Облицовка внешних стен
Деревянная вагонка
Толщина несущих наружных стен
250 мм
Межэтажные перекрытия
По деревянным балкам
Внутренние не несущие перегородки
Каркасно-обшивные
Фундамент
Малозаглубленные ростверки
Терраса
Терраса крытая
Дополнительные
Сауна/баня внутри
Есть
Площадь гостиной
15.0 м²
Площадь кухни
6.5 м²
Количество санузлов
1
Котельная
Есть
Постирочная
Есть
Кладовая
1
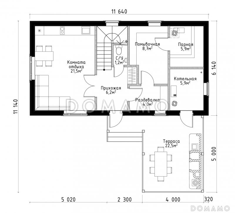
Планы помещений
Фасады
Описание проекта

Проект просторной бани, которая может стать любимым местом для совместного времяпрепровождения всей семьи. Здание облицовано древесиной, перед входом расположена просторная терраса – где можно отдыхать сразу после посещения парной. Первый этаж включает в себя помывочную и парную, а также комнату отдыха. Мансарду занимают две жилых комнаты, в которых с удобством смогут разместится гости семьи.

Ключевые особенности:

  • Крытая терраса у входа.
  • Жилая мансарда.
Категории проекта: с мансардой каркасные в английском стиле в скандинавском стиле для узких участков гостевые от 100 до 200 кв.м в европейском стиле с террасой скандинавские каркасные дома из бруса в стиле замка готовые в финском стиле одноэтажные с мансардой одноэтажные до 150 кв. м. одноэтажные с котельной с котельной с баней до 120 кв.м до 150 кв.м до 200 кв.м с двухскатной крышей гостевые с баней узкие прямоугольные с барбекю с печью одноэтажные финские с мансардой до 150 кв м с мансардой и террасой полутораэтажные с мансардой до 120 кв.м одноэтажные до 120 кв.м финские каркасные одноэтажные до 200 кв м до 140 кв м финские одноэтажные каркасные недорогие до 130 кв м каркасные с мансардой до 150 без гаража готовые с котельной с двухскатной крышей с двумя спальнями из клееного бруса без гаража Показать все категории Скрыть категории

Похожие проекты
Состав проекта
Входит в стоимость
Цена, руб. Сроки, дней
Комплект архитектурно-строительных чертежей (АС) Входит в стоимость Готов к отправке
Готово к продаже
Цена, руб. Сроки, дней
Паспорт рабочего проекта 5 000 ₽ 3 рабочих дня в корзину
Дополнительная копия проекта формата А3 4 000 ₽ Готов к отправке в корзину
Электронная копия проекта (скан распечатанной версии) 4 000 ₽ 3 рабочих дня в корзину
Разрабатывается отдельно
Цена, руб. Сроки, дней
Адаптация фундамента (изменение типа фундамента) по запросу 14 рабочих дней
Дизайн интерьера (стоимость от 2200руб. за квад.метр площади) по запросу 30 рабочих дней
Внесение изменений в проект по запросу 20 рабочих дней
Зеркалирование проекта (для которого нет зеркальной версии) 8 000 ₽ 5 рабочих дней в корзину
Разработка Генплана участка, в масштабе 1:250 7 500 ₽ 5 рабочих дней в корзину
Фэншуй дома 20 000 ₽ 14 рабочих дней в корзину
Фэншуй участка 15 000 ₽ 14 рабочих дней в корзину
Фэншуй полная консультация дом+участок с выездом на объект 100 000 ₽ 30 рабочих дней в корзину
Опции проекта вы можете заказать в корзине при оформлении заказа
Предложения строителей Свердловская область
Минимальная
3 115 500 ₽
Стандарт
4 154 000 ₽
Под чистовую отделку
5 192 500 ₽
Показать подробные комплектации
Минимальная
1 142 350 ₽
Стандарт
1 350 050 ₽
Под чистовую отделку
1 869 300 ₽
Показать подробные комплектации
Отзывы покупателей
Рейтинг покупателей
0 / 5 5 5 1
На основе 1 оценок покупателей
0%
0%
0%
0%
0%
Отзывы о проекте D120
Отзыв о проекте D120
Чтобы оставить отзыв, пожалуйста авторизуйтесь.
Подбор строительной компании
Не знаете кому доверить строительство дома? Мы можем помочь! Подберем для вас из сотен наших партнеров несколько компаний с лучшем соотношением цена/качество под конкретно ваш запрос.
Подобрать