Главная Проекты бани Проект бани со свайным фундаментом

D1006 Проект бани со свайным фундаментом

Сравнить проект В избранное
Проект бани со свайным фундаментом / 1
Проект бани со свайным фундаментом / 2
Проект бани со свайным фундаментом / 3
Проект бани со свайным фундаментом / 1
Проект бани со свайным фундаментом / 2
Проект бани со свайным фундаментом / 3
D1006
116 м²
Подготовка проекта:
Готов к отправке
Стоимость проекта
Купить проект
Задайте вопросы по проекту нашему архитектору
8 (800) 200-28-83
Время работы: пн-вс: с 9:00 до 20:00
Задать вопрос по проекту

Технические характеристики
Общие
Материал стен
Клееный брус
Общая площадь
116 м²
Площадь застройки
88.0 м²
Приведенная площадь
104.78 м²
Этажи
1 этаж + мансарда
Гараж
Нет гаража
Подвал / цокольный этаж
Без подвала
Длина дома
12.6 м
Ширина дома
6.0 м
Облицовка внешних стен
Без облицовки
Толщина несущих наружных стен
300 мм
Межэтажные перекрытия
Сборные
Внутренние не несущие перегородки
Каркасно-обшивные
Фундамент
Свайный
Терраса
Терраса крытая
Дополнительные
Сауна/баня внутри
Есть
Площадь кухни
10 м²
Количество санузлов
1
Окно в ванной комнате
Есть
Бильярдная
Есть
Дом для узких участков
Есть
Балкон / лоджия
Балкон
Планы помещений
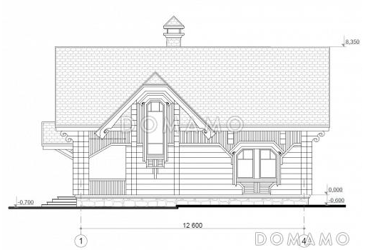
Фасады
Описание проекта

Баня из клееного бруса с оригинальным фасадом. Построенная из клееного бруса баня декорирована резными элементами и массивным обрамлением окон нестандартной формы.

Входная группа представляет собой несколько ступенек, ведущих на просторную террасу. Прихожая объединяет в себе лестничный холл и пространство под вместительный шкаф. В комнате отдыха площадью 22 кв.м расположен вход в санузел и далее в парную. Наверху находится холл с выходом на лоджию и бильярдная.

Преимущества и особенности:

  • в комнате отдыха оборудована кухня,

  • на лоджии под широкой крышей можно поставить комплект садовой мебели,

  • в санузле достаточно площади для установки не только душевой кабины, но и ванны.


Похожие проекты
Состав проекта
Входит в стоимость
Цена, руб. Сроки, дней
Комплект архитектурно-строительных чертежей (АС) Входит в стоимость Готов к отправке
Разрабатывается отдельно
Цена, руб. Сроки, дней
Адаптация фундамента (изменение типа фундамента) по запросу 14 рабочих дней
Дизайн интерьера (стоимость от 2200руб. за квад.метр площади) по запросу 30 рабочих дней
Внесение изменений в проект по запросу 20 рабочих дней
Фэншуй дома 20 000 ₽ 14 рабочих дней в корзину
Фэншуй участка 15 000 ₽ 14 рабочих дней в корзину
Фэншуй полная консультация дом+участок с выездом на объект 100 000 ₽ 30 рабочих дней в корзину
Опции проекта вы можете заказать в корзине при оформлении заказа
Предложения строителей Свердловская область
Подбор строительной компании
Не знаете кому доверить строительство дома? Мы можем помочь! Подберем для вас из сотен наших партнеров несколько компаний с лучшем соотношением цена/качество под конкретно ваш запрос.
Подобрать
Посмотреть еще 2 компании Свернуть
Отзывы покупателей
Рейтинг покупателей
0 / 5 5 5 1
На основе 1 оценок покупателей
0%
0%
0%
0%
0%
Отзывы о проекте D1006
Отзыв о проекте D1006
Чтобы оставить отзыв, пожалуйста авторизуйтесь.
Подбор строительной компании
Не знаете кому доверить строительство дома? Мы можем помочь! Подберем для вас из сотен наших партнеров несколько компаний с лучшем соотношением цена/качество под конкретно ваш запрос.
Подобрать