Главная Проекты домов Проект четырехэтажного дома с необычной формой в плане, двусветной гостиной и бассейном

D1493 Проект четырехэтажного дома с необычной формой в плане, двусветной гостиной и бассейном

Сравнить проект В избранное
Проект четырехэтажного дома с необычной формой в плане, двусветной гостиной и бассейном / 1
Проект четырехэтажного дома с необычной формой в плане, двусветной гостиной и бассейном / 1
D1493
531 м²
Технические характеристики
Общие
Материал стен
Газобетон
Общая площадь
531 м²
Жилая площадь
144.8 м²
Приведенная площадь
479.4 м²
Количество жилых комнат/спален
5
Этажи
2 этажа + мансарда
Гараж
Нет гаража
Подвал / цокольный этаж
С окнами
Длина дома
21.8 м
Ширина дома
15.4 м
Высота в коньке
12.5 м
Кровля
Натуральная черепица
Облицовка внешних стен
Облицовка камнем
,
Облицовочный кирпич
Толщина несущих наружных стен
375-400 мм
Межэтажные перекрытия
Монолитные
Внутренние не несущие перегородки
Каркасно-обшивные
Фундамент
Монолитная ж/бетонная плита
Терраса
Терраса крытая
Дополнительные
Окна
Окна до пола
,
Панорамные окна
Второй свет
Есть
Мансардные окна
Есть
Камин
Есть
Сауна/баня внутри
Есть
Бассейн
Есть
Площадь гостиной
35.6 м²
Площадь кухни
21.2 м²
Количество санузлов
5
Окно в ванной комнате
Есть
Котельная
Есть
Спортзал / детский / игровой зал
Есть
Бильярдная
Есть
Хозяйский санузел
Есть
Кладовая
5
Зимний сад
Есть
Балкон / лоджия
Балкон
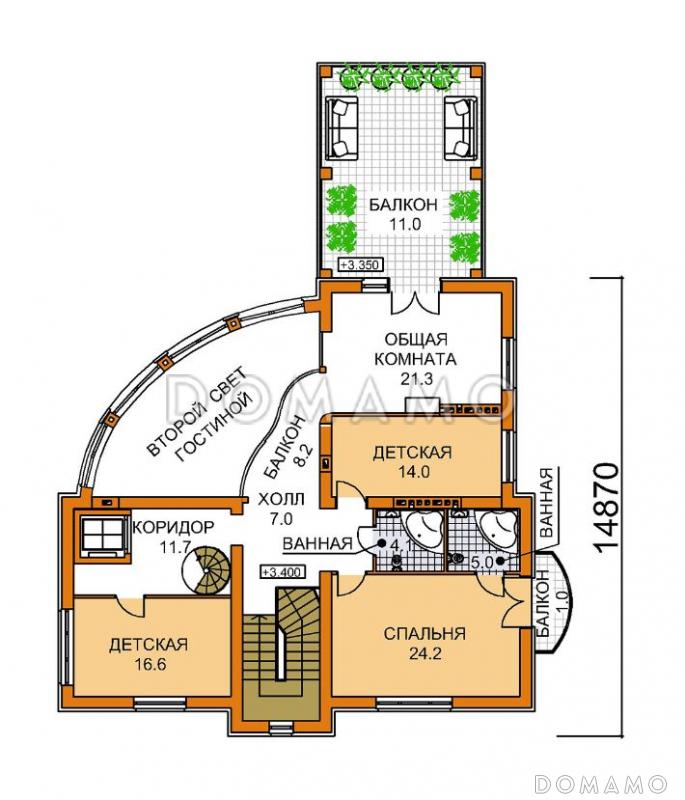
Планы помещений
Фасады
Описание проекта

Изысканный особняк с пятью спальнями понравится семье из 4-6 человек. Здание нестандартной формы построено из газобетона и облицовано кирпичом и камнем.

На цокольном этаже оборудована спа-зона и бильярдная. Здесь же размещены кладовые. На первом этаже — просторная дневная зона, состоящая из гостиной, столовой и зимнего сада, а также 2 спальни. Спальня родителей и две детские расположены на втором этаже. На мансарду ведет винтовая лестница, здесь находятся подсобки.

Преимущества и особенности:

  • неординарное оформление фасада и несимметричная форма дома выделяют особняк на фоне стандартных построек соседей,

  • на втором этаже оборудован просторный балкон,

  • лифт делает перемещение между этажами комфортнее.

Категории проекта: с мансардой для постоянного проживания пенобетон от 500 кв.м с террасой из пеноблоков с мансардой из газобетона с цокольным этажом из газобетона готовые из газобетона с мансардой с цокольным этажом двухэтажные двухэтажные с мансардой с котельной со вторым светом двухэтажные из газобетона из газосиликатных блоков двухэтажные из пеноблоков с баней с цокольным этажом и мансардой с бассейном загородные из керамзитобетонных блоков с баней и бассейном с бильярдной с камином с сауной с балконом с зимним садом с панорамным остеклением в стиле эклектика из газобетона с баней из газобетона с террасой двухэтажные с цокольным этажом из блоков двухэтажные из блоков из блоков с мансардой из пеноблоков с баней из пеноблоков с цокольным этажом из пеноблоков с террасой загородные из газобетона Проекты двухэтажных домов с террасой Проекты двухэтажных домов с верандой без гаража с террасой и камином облицованные кирпичом с мансардой и террасой особняки каменные с панорамными окнами и террасой двухэтажные с сауной с балконом и террасой из пеноблоков загородные с 5 спальнями большие сложной формы двухэтажные с камином двухэтажные со вторым светом двухэтажные с панорамными окнами двухэтажные с балконом двухэтажные с балконом и террасой двухэтажные с бассейном двухэтажные без гаража с мансардой с баней с мансардой с котельной с мансардой с зимним садом с мансардой с камином с мансардой с бассейном с мансардой с панорамными окнами с мансардой с окнами до пола с мансардой со вторым светом с мансардой с мансардными окнами с мансардой с балконом с мансардой сложной формы с мансардой готовые с мансардой для постоянного проживания с мансардой элитные с мансардой большие из газобетона от 500 кв.м из газобетона с панорамными окнами из газобетона с балконом из газобетона с котельной из газобетона готовые из газобетона с камином из газобетона с большой кухней из газобетона большие из газобетона для постоянного проживания из газобетона со вторым светом двухэтажные из газобетона с зимним садом двухэтажные из газобетона большие из газобетона с мансардой в стиле эклектика из газобетона с мансардой с балконом из газобетона с мансардой с террасой из газобетона с мансардой с камином из газобетона с мансардой для постоянного проживания из газобетона с мансардой готовые из газобетона с мансардой большие из газобетона с мансардой с большой кухней из газобетона с мансардой с баней из газобетона с мансардой с зимним садом из газобетона с мансардой с панорамными окнами из газобетона с мансардой со вторым светом большие готовые большие в стиле эклектика большие с вторым светом большие с балконом большие сложной формы большие с камином большие с бассейном большие с окном в ванной комнате большие с панорамными окнами большие с окнами в пол большие без гаража большие с большой кухней большие с террасой большие с баней большие с котельной большие с спортзалом большие с зимним садом из пеноблоков в стиле эклектика из пеноблоков с окнами до пола из пеноблоков с панорамными окнами из пеноблоков с вторым светом из пеноблоков нестандартные из пеноблоков с балконом из пеноблоков для постоянного проживания из пеноблоков готовые из пеноблоков с камином из пеноблоков с бассейном из пеноблоков от 500 м2 из пеноблоков большие из пеноблоков с большой кухней недорогие с панорамными окнами из клееного бруса без гаража Показать все категории Скрыть категории

Похожие проекты
Состав проекта
Входит в стоимость
Цена, руб. Сроки, дней
Комплект архитектурно-строительных чертежей (АС) Входит в стоимость Готов к отправке
Готово к продаже
Цена, руб. Сроки, дней
Паспорт рабочего проекта 5 000 ₽ Готов к отправке в корзину
Инженерные разделы: ВК + ОВ + ЭО 10 000 ₽ Готов к отправке в корзину
Дополнительная копия проекта формата А3 2 000 ₽ Готов к отправке в корзину
Две дополнительные копии проекта формата А3 + 1 паспорт рабочего проекта 8 000 ₽ Готов к отправке в корзину
Разрабатывается отдельно
Цена, руб. Сроки, дней
Адаптация фундамента (изменение типа фундамента) по запросу 14 рабочих дней
Дизайн интерьера (стоимость от 2200руб. за квад.метр площади) по запросу 30 рабочих дней
Внесение изменений в проект по запросу 20 рабочих дней
Фэншуй дома 20 000 ₽ 14 рабочих дней в корзину
Фэншуй участка 15 000 ₽ 14 рабочих дней в корзину
Фэншуй полная консультация дом+участок с выездом на объект 100 000 ₽ 30 рабочих дней в корзину
Опции проекта вы можете заказать в корзине при оформлении заказа
Предложения строителей Свердловская область
Подбор строительной компании
Не знаете кому доверить строительство дома? Мы можем помочь! Подберем для вас из сотен наших партнеров несколько компаний с лучшем соотношением цена/качество под конкретно ваш запрос.
Подобрать
Посмотреть еще 3 компании Свернуть
Отзывы покупателей
Рейтинг покупателей
0 / 5 5 5 1
На основе 1 оценок покупателей
0%
0%
0%
0%
0%
Отзывы о проекте D1493
Отзыв о проекте D1493
Чтобы оставить отзыв, пожалуйста авторизуйтесь.
Подбор строительной компании
Не знаете кому доверить строительство дома? Мы можем помочь! Подберем для вас из сотен наших партнеров несколько компаний с лучшем соотношением цена/качество под конкретно ваш запрос.
Подобрать