Главная Проекты домов Проект двухэтажного коттеджа на две семьи

D1558 Проект двухэтажного коттеджа на две семьи

Сравнить проект В избранное
Проект двухэтажного коттеджа на две семьи / 1
Проект двухэтажного коттеджа на две семьи / 2
Проект двухэтажного коттеджа на две семьи / 3
Проект двухэтажного коттеджа на две семьи / 4
Проект двухэтажного коттеджа на две семьи / 1
Проект двухэтажного коттеджа на две семьи / 2
Проект двухэтажного коттеджа на две семьи / 3
Проект двухэтажного коттеджа на две семьи / 4
D1558
329 м²
Технические характеристики
Общие
Материал стен
Газобетон
Общая площадь
329 м²
Площадь застройки
306.5 м²
Приведенная площадь
339.5 м²
Количество жилых комнат/спален
4
Этажи
2 этажа
Гараж
Встроенный гараж
Подвал / цокольный этаж
Без подвала
Длина дома
23.91 м
Ширина дома
12.82 м
Высота в коньке
7.1 м
Кровля
Металлочерепица
Облицовка внешних стен
Облицовочный кирпич
Толщина несущих наружных стен
520 мм
Межэтажные перекрытия
Сборные
Внутренние не несущие перегородки
Газобетонные
Фундамент
Ленточный монолитный
Терраса
Терраса крытая
Дополнительные
Сауна/баня внутри
Нет
Площадь гостиной
24.56 м²
Площадь кухни
42.06 м²
Количество санузлов
4
Котельная
Есть
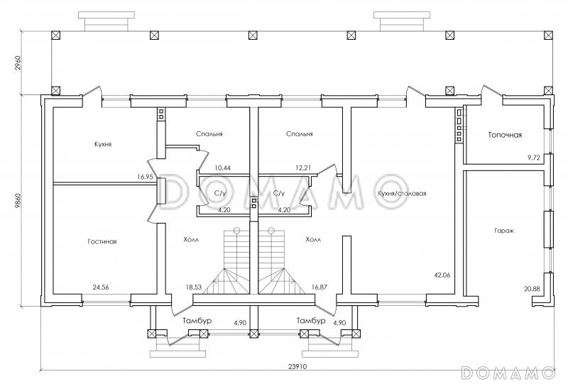
Планы помещений
Фасады
Описание проекта
Компания Domamo предлагает проект двухэтажного коттеджа на две семьи D1558. Общая площадь - 329 м2, размер - 23.91х12.82 м. Фундамент - ленточный монолитный, кровля - металлочерепица, внешняя отделка - облицовочный кирпич. Для заказа проекта или внесения изменений свяжитесь с нами с помощью форм обратной связи на сайте или по телефону +7 (343) 357-92-70.
Категории проекта: с гаражом для постоянного проживания пенобетон в классическом стиле от 300 до 400 кв.м с террасой из газобетона готовые из газобетона с гаражом двухэтажные двухэтажные с гаражом с котельной двухэтажные из газобетона из газосиликатных блоков двухэтажные из пеноблоков из пеноблоков с гаражом с двухскатной крышей загородные из керамзитобетонных блоков прямоугольные со встроенным гаражом из газобетона с террасой из блоков двухэтажные из блоков из блоков с гаражом из пеноблоков с террасой загородные из газобетона Проекты двухэтажных домов с террасой Проекты двухэтажных домов с верандой облицованные кирпичом с гаражом под одной крышей с гаражом и террасой двухэтажные с террасой и гаражом с 4 спальнями из пеноблоков загородные двухэтажные с двускатной крышей двухэтажные с 4 спальнями двухэтажные в классическом стиле из газобетона от 300 до 400 кв.м из газобетона с двухскатной крышей из газобетона в классическом стиле из газобетона с котельной из газобетона прямоугольные из газобетона готовые из газобетона с большой кухней из газобетона с четырьмя спальнями из газобетона с изолированной кухней из газобетона для постоянного проживания двухэтажные из газобетона с гаражом двухэтажные из газобетона с террасой двухэтажные из газобетона с котельной двухэтажные из газобетона классические двухэтажные из газобетона с двухскатной крышей двухэтажные из газобетона большие двухэтажные из газобетона без подвала двухэтажные из газобетона с изолированной кухней двухэтажные из газобетона с 4 спальнями классические для постоянного проживания классические с гаражом классические с 4 спальнями классические с террасой классические готовые классические элитные классические с котельной классические с большой кухней классические с изолированной кухней классические без подвала классические прямоугольные классические с двухскатной крышей из пеноблоков в классическом стиле из пеноблоков с двухскатной крышей из пеноблоков прямоугольные из пеноблоков для постоянного проживания из пеноблоков готовые из пеноблоков от 300 до 400 м2 из пеноблоков большие из пеноблоков с 4 спальнями из пеноблоков с большой кухней из пеноблоков с изолированной кухней из клееного бруса без гаража Показать все категории Скрыть категории

Похожие проекты
Состав проекта
Входит в стоимость
Цена, руб. Сроки, дней
Комплект архитектурно-строительных чертежей (АС) Входит в стоимость 23 рабочих дня
Зеркальная версия проекта Входит в стоимость 23 рабочих дня
Готово к продаже
Цена, руб. Сроки, дней
Паспорт рабочего проекта 4 000 ₽ 23 рабочих дня в корзину
Дополнительная копия проекта формата А3 4 000 ₽ 23 рабочих дня в корзину
Электронная копия проекта (скан распечатанной версии) 4 000 ₽ 23 рабочих дня в корзину
3D модель дома 20 000 ₽ 23 рабочих дня в корзину
Разрабатывается отдельно
Цена, руб. Сроки, дней
Адаптация фундамента (изменение типа фундамента) по запросу 14 рабочих дней
Дизайн интерьера (стоимость от 2200руб. за квад.метр площади) по запросу 30 рабочих дней
Внесение изменений в проект по запросу 20 рабочих дней
Разработка Генплана участка, в масштабе 1:250 7 000 ₽ 23 рабочих дня в корзину
Фэншуй дома 20 000 ₽ 14 рабочих дней в корзину
Фэншуй участка 15 000 ₽ 14 рабочих дней в корзину
Фэншуй полная консультация дом+участок с выездом на объект 100 000 ₽ 30 рабочих дней в корзину
Опции проекта вы можете заказать в корзине при оформлении заказа
Предложения строителей Свердловская область
Подбор строительной компании
Не знаете кому доверить строительство дома? Мы можем помочь! Подберем для вас из сотен наших партнеров несколько компаний с лучшем соотношением цена/качество под конкретно ваш запрос.
Подобрать
Посмотреть еще 3 компании Свернуть
Отзывы покупателей
Рейтинг покупателей
0 / 5 5 5 1
На основе 1 оценок покупателей
0%
0%
0%
0%
0%
Отзывы о проекте D1558
Отзыв о проекте D1558
Чтобы оставить отзыв, пожалуйста авторизуйтесь.
Подбор строительной компании
Не знаете кому доверить строительство дома? Мы можем помочь! Подберем для вас из сотен наших партнеров несколько компаний с лучшем соотношением цена/качество под конкретно ваш запрос.
Подобрать