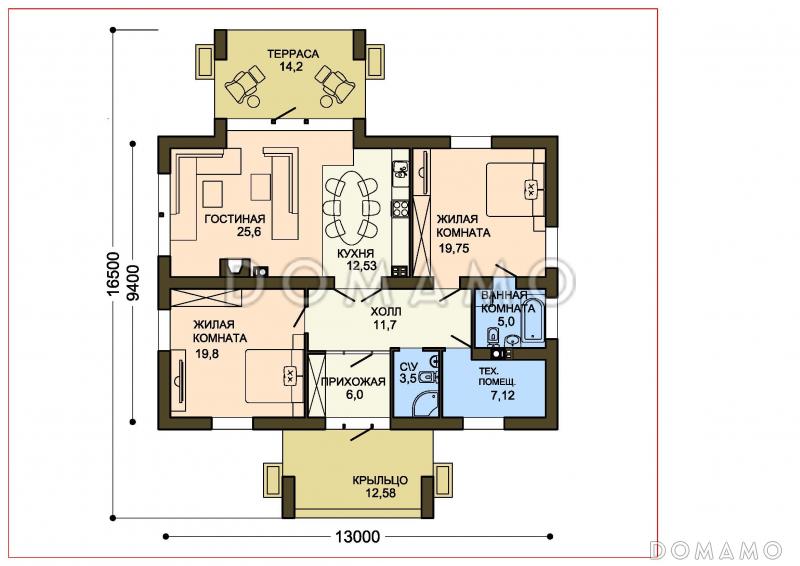
Одноэтажный дом в стандартном общем размере 10×13 метров для круглогодичного проживания семьи из 3-4 человек. Одна из основных особенностей — большая, совмещенная с кухней гостиная с панорамным окном и выходом на крытую террасу, отличное место для вечернего чаепития или отдыха возле бассейна. Основа планировки — разделение функциональных и жилых помещений, в число последних входит санузел и просторная ванная комната.
Особенности проекта: