Главная Проекты домов Проект одноэтажного коттеджа с коричневой облицовкой и необычной стеной крыльца

D630 Проект одноэтажного коттеджа с коричневой облицовкой и необычной стеной крыльца

Сравнить проект В избранное
Технические характеристики
Общие
Материал стен
Газобетон
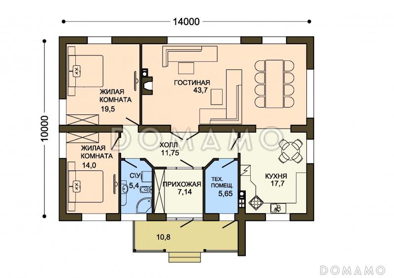
Общая площадь
135 м²
Жилая площадь
77.2 м²
Площадь застройки
166.4 м²
Приведенная площадь
127.94 м²
Количество жилых комнат/спален
2
Этажи
1 этаж
Гараж
Нет гаража
Подвал / цокольный этаж
Без подвала
Длина дома
14 м
Ширина дома
10 м
Высота в коньке
6.0 м
Кровля
Металлочерепица
Облицовка внешних стен
Мокрая штукатурка
,
Облицовочный кирпич
Толщина несущих наружных стен
400 мм
Межэтажные перекрытия
По деревянным балкам
Внутренние не несущие перегородки
Газобетонные
Фундамент
Малозаглубленные ростверки
Терраса
Терраса крытая
Дополнительные
Окна
Окна до пола
,
Панорамные окна
Камин
Есть
Сауна/баня внутри
Нет
Площадь гостиной
43.7 м²
Площадь кухни
17.7 м²
Количество санузлов
1
Окно в ванной комнате
Есть
Котельная
Есть
Планы помещений
Фасады
Описание проекта

Одноэтажный дом из пенобетона с двумя спальнями и просторной гостиной, предназначен для круглогодичного проживания семьи из 3-4 человек. В проекте предусмотрено все необходимое для обеспечения комфортных условий — четкое деление жилой и технической зон, специальное помещение с вытяжкой для котельной, камин и панорамные окна в гостиной — дополнительные источники естественного света и тепла.

Особенности проекта:

  • Архитектурная выразительность благодаря необычной опорной, контрфорсной кирпичной стене с вытяжкой и фасадной отделке декоративным кирпичом.
  • Панорамные окна гостиной.
  • Объединенное (при желании) пространство кухни и гостиной.
  • Наличие технического помещения с отдельным входом.
  • Просторный холл.
  • Компактное жилое пространство — удобный доступ ко всем помещениям.
Категории проекта: для постоянного проживания пенобетон в английском стиле в скандинавском стиле современные от 100 до 200 кв.м в европейском стиле с террасой из бруса в стиле замка из газобетона в стиле хай-тек из газобетона в стиле шале из газобетона в английском стиле из газобетона в немецком стиле из газобетона одноэтажные из пеноблоков готовые в финском стиле в стиле минимализм одноэтажные одноэтажные до 150 кв. м. одноэтажные с котельной с котельной одноэтажные из газобетона из газосиликатных блоков до 150 кв.м до 200 кв.м загородные с четырехскатной крышей из керамзитобетонных блоков с камином прямоугольные с панорамным остеклением из газобетона с террасой из блоков одноэтажные из блоков из пеноблоков с террасой загородные из газобетона Проекты одноэтажных домов с террасой Типовые проекты загородных одноэтажных домов без гаража одноэтажные без гаража с террасой и камином облицованные кирпичом одноэтажных из керамзитобетонных блоков одноэтажные финские одноэтажные с 2 спальнями с панорамными окнами и террасой одноэтажные до 200 кв м до 140 кв м недорогие из пеноблоков загородные одноэтажные современные одноэтажные в стиле минимализм одноэтажные с четырехскатной крышей одноэтажные прямоугольные одноэтажные с панорамными окнами одноэтажные с окнами в пол одноэтажные с камином одноэтажные с изолированной кухней одноэтажные с большой гостиной одноэтажные до 180 м2 одноэтажные из газобетона с террасой одноэтажные из газобетона до 150 кв. м одноэтажные из газобетона с мансардой одноэтажные из газобетона с 2 спальнями скандинавский стиль минимализм современные панорамные окна окна в пол четырехскатная крыша прямоугольные с большой гостиной с камином готовые проекты для постоянного проживания с котельной из газобетона до 150 кв.м из газобетона до 200 кв.м из газобетона от 100 до 200 кв.м из газобетона с четырехскатной крышей из газобетона в стиле минимализм из газобетона в скандинавском стиле из газобетона современные из газобетона с панорамными окнами из газобетона с котельной из газобетона прямоугольные из газобетона готовые из газобетона с камином из газобетона с большой кухней из газобетона с двумя спальнями из газобетона с изолированной кухней из газобетона для постоянного проживания современные без гаража современные с панорамными окнами современные с окнами в пол современные с террасой современные до 150 кв. м современные от 100 до 200 кв. м скандинавские для постоянного проживания скандинавские без гаража скандинавские с окнами в пол скандинавские с панорамными окнами скандинавские с террасой скандинавские с большой гостиной скандинавские с большой кухней скандинавские готовые скандинавские прямоугольные скандинавские до 150 кв. м скандинавские от 100 до 200 м2 скандинавские с камином скандинавские с четырехскатной крышей скандинавские недорогие скандинавские с котельной до 150 кв.м для постоянного проживания до 150 кв.м без гаража до 150 кв.м с четырехскатной крышей до 150 кв.м с окнами до пола до 150 кв.м с панорамными окнами до 150 кв.м минимализм до 150 кв.м готовые до 150 кв.м прямоугольные до 150 кв.м с котельной до 150 кв.м с изолированной кухней до 150 кв.м без бани до 150 кв.м с террасой до 150 кв.м без подвала до 150 кв.м с 2 спальнями до 150 кв.м с большой кухней до 150 кв.м с большой гостиной до 150 кв.м с камином из пеноблоков в скандинавском стиле из пеноблоков в современном стиле из пеноблоков в стиле минимализм из пеноблоков с четырехскатной крышей из пеноблоков с окнами до пола из пеноблоков с панорамными окнами из пеноблоков прямоугольные из пеноблоков для постоянного проживания из пеноблоков недорогие из пеноблоков готовые из пеноблоков с камином из пеноблоков до 150 м кв. из пеноблоков от 100 до 200 м2 из пеноблоков с 2 спальнями из пеноблоков с большой гостиной из пеноблоков с большой кухней из пеноблоков с изолированной кухней в стиле минимализм для постоянного проживания в стиле минимализм без гаража в стиле минимализм прямоугольные в стиле минимализм с четырехскатной крышей в стиле минимализм с окнами в пол в стиле минимализм с панорамными окнами в стиле минимализм с террасой в стиле минимализм с большой гостиной в стиле минимализм с котельной в стиле минимализм с камином в стиле минимализм недорогие в стиле минимализм от 100 до 200 м2 в стиле минимализм с ростверкным фундаментом недорогие без гаража недорогие с террасой недорогие для постоянного проживания недорогие с четырехскатной крышей недорогие с окнами до пола недорогие с панорамными окнами недорогие с большой гостиной недорогие с изолированной кухней недорогие без бани недорогие с котельной недорогие с камином недорогие прямоугольные недорогие до 150 м2 недорогие от 100 до 200 м2 из клееного бруса без гаража Показать все категории Скрыть категории

Похожие проекты
Состав проекта
Входит в стоимость
Цена, руб. Сроки, дней
Комплект архитектурно-строительных чертежей (АС) Входит в стоимость 3 рабочих дня
Готово к продаже
Цена, руб. Сроки, дней
Паспорт рабочего проекта 4 000 ₽ 3 рабочих дня в корзину
Инженерные разделы: ВК + ОВ + ЭО 10 000 ₽ 3 рабочих дня в корзину
Дополнительная копия проекта формата А3 3 000 ₽ 3 рабочих дня в корзину
Две дополнительные копии проекта формата А3 + 1 паспорт рабочего проекта 10 000 ₽ 3 рабочих дня в корзину
Разрабатывается отдельно
Цена, руб. Сроки, дней
Адаптация фундамента (изменение типа фундамента) по запросу 14 рабочих дней
Дизайн интерьера (стоимость от 2200руб. за квад.метр площади) по запросу 30 рабочих дней
Внесение изменений в проект по запросу 20 рабочих дней
Фэншуй дома 20 000 ₽ 14 рабочих дней в корзину
Фэншуй участка 15 000 ₽ 14 рабочих дней в корзину
Фэншуй полная консультация дом+участок с выездом на объект 100 000 ₽ 30 рабочих дней в корзину
Опции проекта вы можете заказать в корзине при оформлении заказа
Предложения строителей Выбрать регион
Минимальная
4 349 960 ₽
Стандарт
5 373 480 ₽
Под чистовую отделку
7 036 700 ₽
Показать подробные комплектации
Минимальная
13 049 880 ₽
Стандарт
15 352 800 ₽
Под чистовую отделку
19 958 640 ₽
Показать подробные комплектации
Минимальная
6 544 131 ₽
Стандарт
9 710 646 ₽
Под чистовую отделку
15 410 373 ₽
Показать подробные комплектации
Минимальная
4 477 900 ₽
Стандарт
5 373 480 ₽
Под чистовую отделку
6 013 180 ₽
Показать подробные комплектации
Минимальная
4 129 391 ₽
Стандарт
6 060 517 ₽
Под чистовую отделку
6 483 999 ₽
Показать подробные комплектации
Минимальная
4 477 900 ₽
Стандарт
5 117 600 ₽
Под чистовую отделку
6 716 850 ₽
Показать подробные комплектации
Подбор строительной компании
Не знаете кому доверить строительство дома? Мы можем помочь! Подберем для вас из сотен наших партнеров несколько компаний с лучшем соотношением цена/качество под конкретно ваш запрос.
Подобрать
Посмотреть еще 32 компании Свернуть
Отзывы покупателей
Рейтинг покупателей
0 / 5 5 5 1
На основе 1 оценок покупателей
0%
0%
0%
0%
0%
Отзывы о проекте D630
Отзыв о проекте D630
Чтобы оставить отзыв, пожалуйста авторизуйтесь.
Подбор строительной компании
Не знаете кому доверить строительство дома? Мы можем помочь! Подберем для вас из сотен наших партнеров несколько компаний с лучшем соотношением цена/качество под конкретно ваш запрос.
Подобрать