Главная Проекты домов Проект кирпичного двухэтажного дома с кабинетом, 4 спальнями и просторной гардеробной у входа

D5934 Проект кирпичного двухэтажного дома с кабинетом, 4 спальнями и просторной гардеробной у входа

Сравнить проект В избранное
Технические характеристики
Общие
Материал стен
Кирпич
Общая площадь
174 м²
Жилая площадь
92.7 м²
Приведенная площадь
173.54 м²
Количество жилых комнат/спален
5
Этажи
2 этажа
Гараж
Нет гаража
Подвал / цокольный этаж
Без подвала
Длина дома
15.98 м
Ширина дома
11.46 м
Высота в коньке
9.29 м
Кровля
Металлочерепица
Облицовка внешних стен
Облицовочный кирпич
Межэтажные перекрытия
Монолитные
Внутренние не несущие перегородки
Кирпичные
Фундамент
Монолитная ж/бетонная плита
Терраса
Терраса крытая
Дополнительные
Окна
Окна до пола
Камин
Есть
Сауна/баня внутри
Нет
Площадь гостиной
20.1 м²
Площадь кухни
13.2 м²
Количество санузлов
3
Окно в ванной комнате
Есть
Котельная
Есть
Кабинет
Есть
Кладовая
3
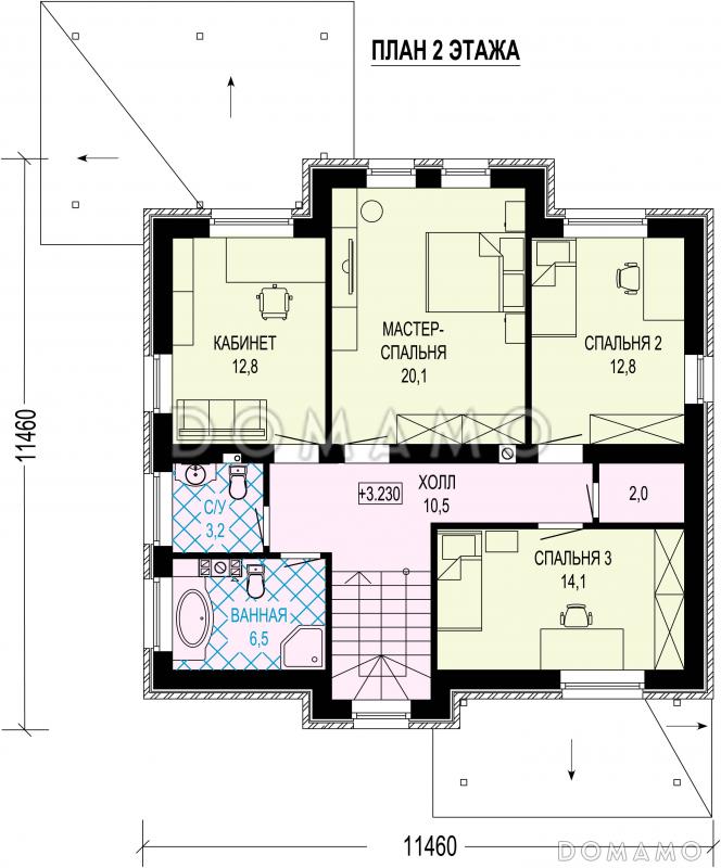
Планы помещений
Фасады
Описание проекта
Компания Domamo предлагает проект кирпичного двухэтажного дома с кабинетом, 4 спальнями и просторной гардеробной у входа D5934. Общая площадь - 174 м2, размер - 15.98х11.46 м. Фундамент - монолитная ж/бетонная плита, кровля - металлочерепица, внешняя отделка - облицовочный кирпич. Для заказа проекта или внесения изменений свяжитесь с нами с помощью форм обратной связи на сайте или по телефону +7 (343) 357-92-70.

Похожие проекты
Состав проекта
Входит в стоимость
Цена, руб. Сроки, дней
Комплект архитектурно-строительных чертежей (АС) Входит в стоимость 15 рабочих дней
Готово к продаже
Цена, руб. Сроки, дней
Зеркальная версия проекта Входит в стоимость 15 рабочих дней
Паспорт рабочего проекта 5 000 ₽ 15 рабочих дней в корзину
Инженерные разделы: ВК + ОВ + ЭО 23 000 ₽ 15 рабочих дней в корзину
Электронная копия проекта (скан распечатанной версии) 4 000 ₽ 3 рабочих дня в корзину
Разрабатывается отдельно
Цена, руб. Сроки, дней
Адаптация фундамента (изменение типа фундамента) по запросу 14 рабочих дней
Дизайн интерьера (стоимость от 2200руб. за квад.метр площади) по запросу 30 рабочих дней
Внесение изменений в проект по запросу 20 рабочих дней
Фэншуй дома 20 000 ₽ 14 рабочих дней в корзину
Фэншуй участка 15 000 ₽ 14 рабочих дней в корзину
Фэншуй полная консультация дом+участок с выездом на объект 100 000 ₽ 30 рабочих дней в корзину
Опции проекта вы можете заказать в корзине при оформлении заказа
Варианты проекта Сравнить все варианты
Избранные проекты
Избранные строители
Предложения строителей Выбрать регион
Минимальная
6 073 900 ₽
Стандарт
7 462 220 ₽
Под чистовую отделку
9 718 240 ₽
Показать подробные комплектации
Минимальная
17 701 080 ₽
Стандарт
20 824 800 ₽
Под чистовую отделку
27 072 240 ₽
Показать подробные комплектации
Минимальная
8 940 780 ₽
Стандарт
13 131 771 ₽
Под чистовую отделку
20 675 555 ₽
Показать подробные комплектации
Минимальная
6 953 747 ₽
Стандарт
7 984 575 ₽
Под чистовую отделку
10 223 588 ₽
Показать подробные комплектации
Минимальная
3 727 786 ₽
Стандарт
4 616 276 ₽
Под чистовую отделку
5 556 256 ₽
Показать подробные комплектации
Подбор строительной компании
Не знаете кому доверить строительство дома? Мы можем помочь! Подберем для вас из сотен наших партнеров несколько компаний с лучшем соотношением цена/качество под конкретно ваш запрос.
Подобрать
Посмотреть еще 20 компаний Свернуть
Отзывы покупателей
Рейтинг покупателей
0 / 5 5 5 1
На основе 1 оценок покупателей
0%
0%
0%
0%
0%
Отзывы о проекте D5934
Отзыв о проекте D5934
Чтобы оставить отзыв, пожалуйста авторизуйтесь.
Подбор строительной компании
Не знаете кому доверить строительство дома? Мы можем помочь! Подберем для вас из сотен наших партнеров несколько компаний с лучшем соотношением цена/качество под конкретно ваш запрос.
Подобрать