Главная Проекты домов Проект двухэтажного дома с 4 спальнями, вторым светом, галереей-библиотекой

D889 Проект двухэтажного дома с 4 спальнями, вторым светом, галереей-библиотекой

Сравнить проект В избранное
Проект двухэтажного дома с 4 спальнями, вторым светом, галереей-библиотекой / 1
Проект двухэтажного дома с 4 спальнями, вторым светом, галереей-библиотекой / 2
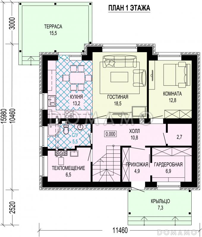
Проект двухэтажного дома с 4 спальнями, вторым светом, галереей-библиотекой / 1
Проект двухэтажного дома с 4 спальнями, вторым светом, галереей-библиотекой / 2
D889
169 м²
Технические характеристики
Общие
Материал стен
Газобетон
Общая площадь
169 м²
Жилая площадь
89.5 м²
Приведенная площадь
155.34 м²
Количество жилых комнат/спален
4
Этажи
2 этажа
Гараж
Нет гаража
Подвал / цокольный этаж
Без подвала
Длина дома
16.36 м
Ширина дома
12.6 м
Высота в коньке
9.29 м
Кровля
Металлочерепица
Облицовка внешних стен
Облицовочный кирпич
Межэтажные перекрытия
Монолитные
Внутренние не несущие перегородки
Газобетонные
Фундамент
Монолитная ж/бетонная плита
Терраса
Терраса крытая
Дополнительные
Окна
Окна до пола
Второй свет
Есть
Камин
Есть
Сауна/баня внутри
Нет
Площадь гостиной
18.5 м²
Площадь кухни
13.2 м²
Количество санузлов
3
Окно в ванной комнате
Есть
Котельная
Есть
Хозяйская гардеробная
Есть
Кладовая
3
Планы помещений
Фасады
Описание проекта
Компания Domamo предлагает проект двухэтажного дома с 4 спальнями, вторым светом, галереей-библиотекой D889. Общая площадь - 169 м2, размер - 16.36х12.6 м. Фундамент - монолитная ж/бетонная плита, кровля - металлочерепица, внешняя отделка - облицовочный кирпич. Для заказа проекта или внесения изменений свяжитесь с нами с помощью форм обратной связи на сайте или по телефону +7 (343) 357-92-70.
Категории проекта: для постоянного проживания пенобетон современные от 100 до 200 кв.м в европейском стиле с террасой из газобетона готовые двухэтажные с котельной со вторым светом двухэтажные из газобетона из газосиликатных блоков двухэтажные из пеноблоков до 200 кв.м загородные из керамзитобетонных блоков с камином с гардеробной прямоугольные из газобетона с террасой из блоков двухэтажные из блоков из пеноблоков с террасой загородные из газобетона Проекты двухэтажных домов с террасой Проекты двухэтажных домов с верандой без гаража с террасой и камином облицованные кирпичом двухэтажные 200 кв м с 4 спальнями двухэтажные от 150 до 200 кв м из пеноблоков загородные двухэтажные до 180 кв.м двухэтажные с камином двухэтажные со вторым светом двухэтажные с 4 спальнями двухэтажные в современном стиле двухэтажные без гаража из газобетона до 200 кв.м из газобетона от 100 до 200 кв.м из газобетона современные из газобетона с котельной из газобетона прямоугольные из газобетона готовые из газобетона с камином из газобетона с четырьмя спальнями из газобетона для постоянного проживания из газобетона со вторым светом двухэтажные из газобетона без гаража двухэтажные из газобетона с террасой двухэтажные из газобетона с камином двухэтажные из газобетона с котельной двухэтажные из газобетона со вторым светом двухэтажные из газобетона современные двухэтажные из газобетона с вальмовой крышей двухэтажные из газобетона до 200 кв. м двухэтажные из газобетона без подвала двухэтажные из газобетона с 4 спальнями современные без гаража современные с окнами в пол современные с террасой современные от 100 до 200 кв. м современные со вторым светом из пеноблоков в современном стиле из пеноблоков с вальмовой крышей из пеноблоков с окнами до пола из пеноблоков с вторым светом из пеноблоков прямоугольные из пеноблоков для постоянного проживания из пеноблоков готовые из пеноблоков с камином из пеноблоков от 100 до 200 м2 из пеноблоков с 4 спальнями из клееного бруса без гаража Показать все категории Скрыть категории

Похожие проекты
Состав проекта
Входит в стоимость
Цена, руб. Сроки, дней
Комплект архитектурно-строительных чертежей (АС) Входит в стоимость 5 рабочих дней
Готово к продаже
Цена, руб. Сроки, дней
Зеркальная версия проекта Входит в стоимость 5 рабочих дней
Паспорт рабочего проекта 5 000 ₽ 5 рабочих дней в корзину
Инженерные разделы: ВК + ОВ + ЭО 23 000 ₽ 5 рабочих дней в корзину
Электронная копия проекта (скан распечатанной версии) 4 000 ₽ 3 рабочих дня в корзину
Разрабатывается отдельно
Цена, руб. Сроки, дней
Адаптация фундамента (изменение типа фундамента) по запросу 14 рабочих дней
Дизайн интерьера (стоимость от 2200руб. за квад.метр площади) по запросу 30 рабочих дней
Внесение изменений в проект по запросу 20 рабочих дней
Фэншуй дома 20 000 ₽ 14 рабочих дней в корзину
Фэншуй участка 15 000 ₽ 14 рабочих дней в корзину
Фэншуй полная консультация дом+участок с выездом на объект 100 000 ₽ 30 рабочих дней в корзину
Опции проекта вы можете заказать в корзине при оформлении заказа
Варианты проекта Сравнить все варианты
Избранные проекты
Избранные строители
Предложения строителей Свердловская область
Подбор строительной компании
Не знаете кому доверить строительство дома? Мы можем помочь! Подберем для вас из сотен наших партнеров несколько компаний с лучшем соотношением цена/качество под конкретно ваш запрос.
Подобрать
Посмотреть еще 3 компании Свернуть
Отзывы покупателей
Рейтинг покупателей
0 / 5 5 5 1
На основе 1 оценок покупателей
0%
0%
0%
0%
0%
Отзывы о проекте D889
Отзыв о проекте D889
Чтобы оставить отзыв, пожалуйста авторизуйтесь.
Подбор строительной компании
Не знаете кому доверить строительство дома? Мы можем помочь! Подберем для вас из сотен наших партнеров несколько компаний с лучшем соотношением цена/качество под конкретно ваш запрос.
Подобрать