Главная Проекты домов Проект дома для отдыха с баней и бассейном

D77 Проект дома для отдыха с баней и бассейном

Сравнить проект В избранное
Проект дома для отдыха с баней и бассейном / 1
Проект дома для отдыха с баней и бассейном / 2
Проект дома для отдыха с баней и бассейном / 3
Проект дома для отдыха с баней и бассейном / 1
Проект дома для отдыха с баней и бассейном / 2
Проект дома для отдыха с баней и бассейном / 3
D77
141 м²
Технические характеристики
Общие
Материал стен
Газобетон
Общая площадь
141 м²
Жилая площадь
57.5 м²
Площадь застройки
104.9 м²
Приведенная площадь
138.4 м²
Количество жилых комнат/спален
3
Этажи
1 этаж + мансарда
Гараж
Нет гаража
Подвал / цокольный этаж
Без подвала
Длина дома
12.4 м
Ширина дома
8.2 м
Высота в коньке
9.8 м
Кровля
Металлочерепица
Облицовка внешних стен
Сайдинг
Толщина несущих наружных стен
300 мм
Межэтажные перекрытия
По деревянным балкам
Внутренние не несущие перегородки
Газобетонные
Фундамент
Утепленная шведская плита (УШП)
Терраса
Без террасы
Дополнительные
Мансардные окна
Есть
Камин
Есть
Сауна/баня внутри
Есть
Бассейн
Есть
Площадь гостиной
20.9 м²
Площадь кухни
12.5 м²
Количество санузлов
2
Котельная
Есть
Кладовая
1
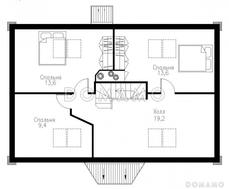
Планы помещений
Фасады
Описание проекта

Максимально простой и лаконичный дом со скромной жилой площадью — 57.5 кв. м. Может играть роль гостевого дома на участке, либо быть основным вариантом для проживания 2-3 человек, например, пожилой пары. Проект позволяет использовать этот дом как жилое помещение, банный комплекс и котельную для отопления не только этого строения, но и основного коттеджа. При скромных размерах здесь достаточно места для трех спален с мансардными окнами, гостиной, кухни и большого банного блока (раздевалка, сауна, бассейн, душевая). Гостиная находится в едином пространстве с кухней, зонирована с помощью углового камина. Возможна установка перегородки для создания двух отдельных помещений.


Похожие проекты
Состав проекта
Входит в стоимость
Цена, руб. Сроки, дней
Комплект архитектурно-строительных чертежей (АС) Входит в стоимость Готов к отправке
Готово к продаже
Цена, руб. Сроки, дней
Паспорт рабочего проекта 5 000 ₽ 3 рабочих дня в корзину
Дополнительная копия проекта формата А3 4 000 ₽ Готов к отправке в корзину
Электронная копия проекта (скан распечатанной версии) 4 000 ₽ 3 рабочих дня в корзину
Разрабатывается отдельно
Цена, руб. Сроки, дней
Адаптация фундамента (изменение типа фундамента) по запросу 14 рабочих дней
Дизайн интерьера (стоимость от 2200руб. за квад.метр площади) по запросу 30 рабочих дней
Внесение изменений в проект по запросу 20 рабочих дней
Инженерные разделы: ВК + ОВ + ЭО 40 000 ₽ 20 рабочих дней в корзину
Зеркалирование проекта (для которого нет зеркальной версии) 8 000 ₽ 5 рабочих дней в корзину
Разработка Генплана участка, в масштабе 1:250 7 500 ₽ 5 рабочих дней в корзину
Фэншуй дома 20 000 ₽ 14 рабочих дней в корзину
Фэншуй участка 15 000 ₽ 14 рабочих дней в корзину
Фэншуй полная консультация дом+участок с выездом на объект 100 000 ₽ 30 рабочих дней в корзину
Опции проекта вы можете заказать в корзине при оформлении заказа
Предложения строителей Свердловская область
Подбор строительной компании
Не знаете кому доверить строительство дома? Мы можем помочь! Подберем для вас из сотен наших партнеров несколько компаний с лучшем соотношением цена/качество под конкретно ваш запрос.
Подобрать
Посмотреть еще 3 компании Свернуть
Отзывы покупателей
Рейтинг покупателей
0 / 5 5 5 1
На основе 1 оценок покупателей
0%
0%
0%
0%
0%
Отзывы о проекте D77
Отзыв о проекте D77
Чтобы оставить отзыв, пожалуйста авторизуйтесь.
Подбор строительной компании
Не знаете кому доверить строительство дома? Мы можем помочь! Подберем для вас из сотен наших партнеров несколько компаний с лучшем соотношением цена/качество под конкретно ваш запрос.
Подобрать