Главная Проекты домов Проект современного дома с мансардным и цокольным этажом

D1872 Проект современного дома с мансардным и цокольным этажом

Сравнить проект В избранное
Проект современного дома с мансардным и цокольным этажом / 1
Проект современного дома с мансардным и цокольным этажом / 2
Проект современного дома с мансардным и цокольным этажом / 3
Проект современного дома с мансардным и цокольным этажом / 4
Проект современного дома с мансардным и цокольным этажом / 5
Проект современного дома с мансардным и цокольным этажом / 6
Проект современного дома с мансардным и цокольным этажом / 1
Проект современного дома с мансардным и цокольным этажом / 2
Проект современного дома с мансардным и цокольным этажом / 3
Проект современного дома с мансардным и цокольным этажом / 4
Проект современного дома с мансардным и цокольным этажом / 5
Проект современного дома с мансардным и цокольным этажом / 6
D1872
488 м²
Подготовка проекта:
Готов к отправке
Стоимость проекта
Купить проект
Задайте вопросы по проекту нашему архитектору
8 (800) 200-28-83
Время работы: пн-вс: с 9:00 до 20:00
Задать вопрос по проекту

Технические характеристики
Общие
Материал стен
Кирпич
Общая площадь
488 м²
Приведенная площадь
483.72 м²
Количество жилых комнат/спален
4
Этажи
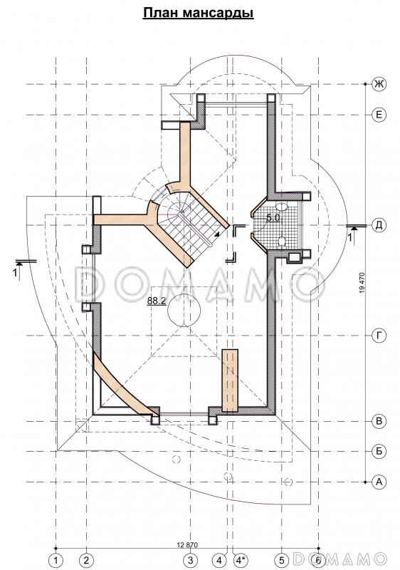
2 этажа + мансарда
Гараж
Нет гаража
Подвал / цокольный этаж
С окнами
Длина дома
19.4 м
Ширина дома
12.8 м
Кровля
Гибкая черепица
Облицовка внешних стен
Мокрая штукатурка
Терраса
Терраса крытая
Дополнительные
Окна
Окна до пола
Второй свет
Есть
Камин
Есть
Сауна/баня внутри
Есть
Площадь гостиной
30.8 м²
Площадь кухни
27.8 м²
Количество санузлов
6
Окно в ванной комнате
Есть
Котельная
Есть
Кабинет
Есть
Хозяйский санузел
Есть
Кладовая
1
Зимний сад
Есть
Балкон / лоджия
Балкон
Планы помещений
Фасады
Описание проекта

Оригинальный особняк предназначен для комфортабельной жизни семейной пары с 1-2 детьми. Экстерьер обращает на себя внимание фасадами неправильной формы с выступами, балконами и круглыми окнами.

Дом состоит из двух этажей, подвала и мансарды. На цокольном этаже оборудована рекреационная зона с сауной, каминной, баром и винным погребом. На первом этаже из вестибюля мы попадаем в просторный холл, из которого можно пройти в кабинет, ванную и гостиную. Гостиная, в свою очередь, имеет проходы в кухню-столовую и зимний сад. Обе спальни расположены на втором этаже, в каждой оборудована отдельная ванна.

Преимущества и особенности

  • на мансарде расположено помещение площадью 88 кв.м: здесь можно организовать бильярдную или тренажерный зал,

  • в ванных комнатах установлены окна: так помещения лучше освещаются и проветриваются.

Категории проекта: с мансардой для постоянного проживания кирпич от 400 до 500 кв.м кирпичные дома с мансардой с эркером кирпичные дома с эркером с террасой из кирпича с террасой готовые в стиле модерн с цокольным этажом загородные из кирпича двухэтажные из кирпича двухэтажные из кирпича с мансардой двухэтажные двухэтажные с мансардой кирпичные с цокольным этажом кирпичные с котельной с котельной со вторым светом с баней с цокольным этажом и мансардой загородные с камином с сауной с балконом с зимним садом кирпичные с баней двухэтажные с цокольным этажом с эркером и мансардой двухэтажные с эркером Проекты двухэтажных домов с террасой Проекты двухэтажных домов с верандой без гаража с террасой и камином с кабинетом с мансардой и террасой с 4 спальнями двухэтажные с сауной с балконом и террасой большие сложной формы двухэтажные с камином двухэтажные со вторым светом двухэтажные с 4 спальнями двухэтажные с балконом двухэтажные с балконом и террасой двухэтажные без гаража с мансардой с баней с мансардой с котельной с мансардой с зимним садом с мансардой с камином с мансардой с окнами до пола с мансардой со вторым светом с мансардой с балконом с мансардой сложной формы с мансардой готовые с мансардой для постоянного проживания с мансардой элитные с мансардой большие большие готовые большие в стиле модерн большие с вторым светом большие с балконом большие сложной формы большие с камином большие с окном в ванной комнате большие с окнами в пол большие без гаража большие с большой кухней большие с изолированной кухней большие с террасой большие с баней большие с котельной большие с кабинетом большие с 4 спальнями большие с зимним садом из клееного бруса без гаража Показать все категории Скрыть категории

Похожие проекты
Состав проекта
Входит в стоимость
Цена, руб. Сроки, дней
Комплект архитектурно-строительных чертежей (АС) Входит в стоимость Готов к отправке
Разрабатывается отдельно
Цена, руб. Сроки, дней
Адаптация фундамента (изменение типа фундамента) по запросу 14 рабочих дней
Дизайн интерьера (стоимость от 2200руб. за квад.метр площади) по запросу 30 рабочих дней
Внесение изменений в проект по запросу 20 рабочих дней
Фэншуй дома 20 000 ₽ 14 рабочих дней в корзину
Фэншуй участка 15 000 ₽ 14 рабочих дней в корзину
Фэншуй полная консультация дом+участок с выездом на объект 100 000 ₽ 30 рабочих дней в корзину
Опции проекта вы можете заказать в корзине при оформлении заказа
Предложения строителей Свердловская область
Подбор строительной компании
Не знаете кому доверить строительство дома? Мы можем помочь! Подберем для вас из сотен наших партнеров несколько компаний с лучшем соотношением цена/качество под конкретно ваш запрос.
Подобрать
Посмотреть еще 2 компании Свернуть
Отзывы покупателей
Рейтинг покупателей
0 / 5 5 5 1
На основе 1 оценок покупателей
0%
0%
0%
0%
0%
Отзывы о проекте D1872
Отзыв о проекте D1872
Чтобы оставить отзыв, пожалуйста авторизуйтесь.
Подбор строительной компании
Не знаете кому доверить строительство дома? Мы можем помочь! Подберем для вас из сотен наших партнеров несколько компаний с лучшем соотношением цена/качество под конкретно ваш запрос.
Подобрать